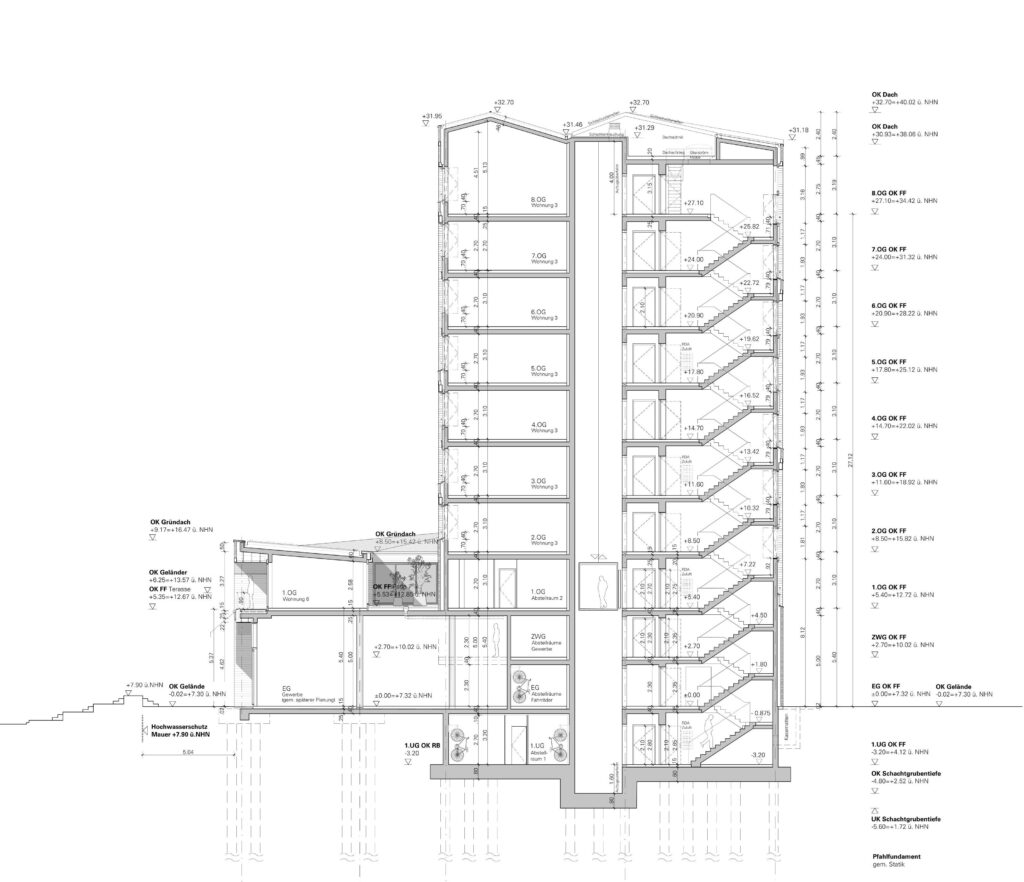
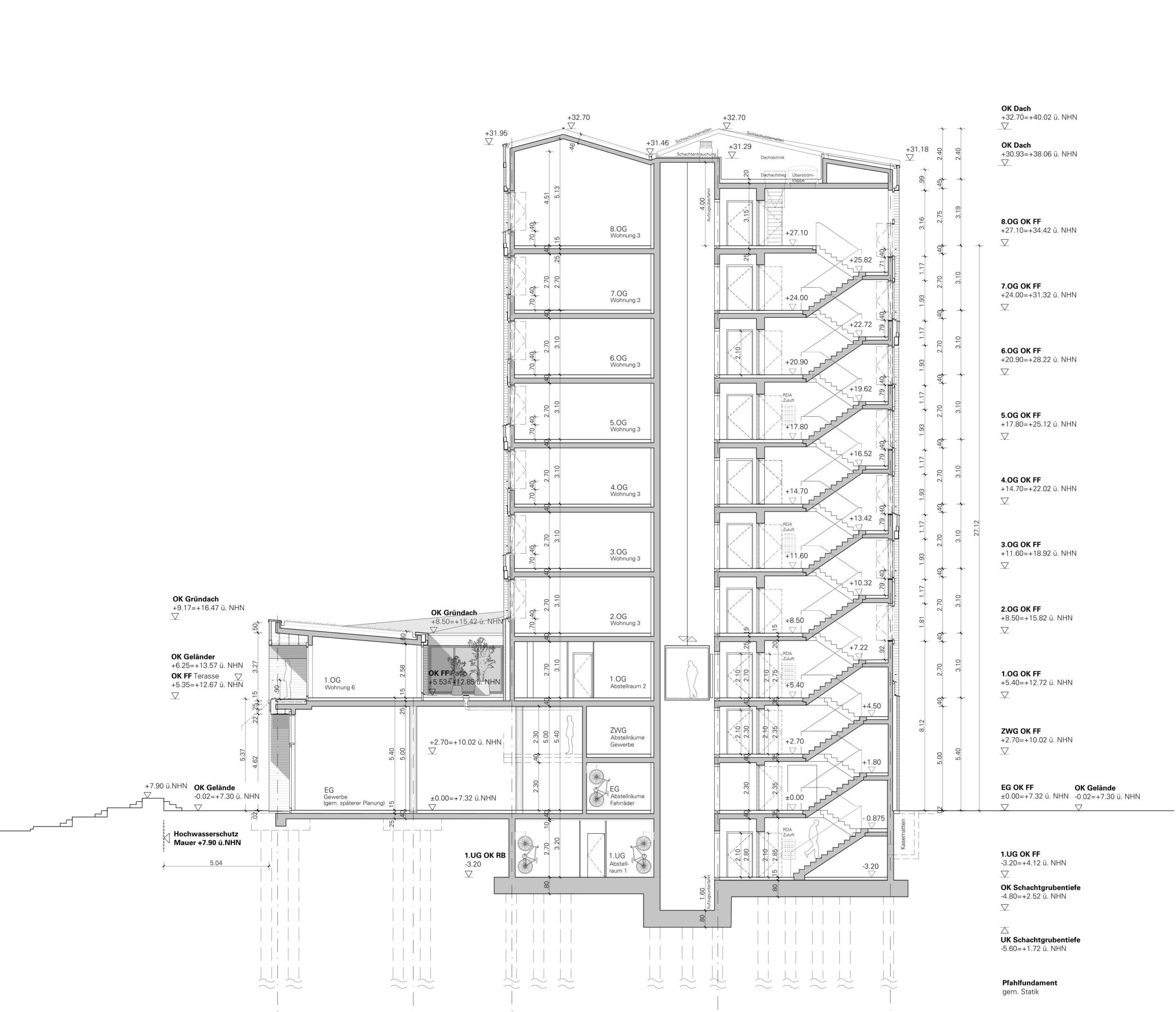
Packhaus, Bremen-Vegesack
Leistungsphasen 1-5, in Planung
Standort: Bremen-Vegesack
Bauherr: 2P Projektentwicklung
Auftraggeber: 2P Projektentwicklung
Größe: ca. 5.960 qm BGF
Nutzung: Wohnen und Gewerbe
Fachplaner: 2P Projektentwicklung GmbH, IGP Ingenieur GmbH, HHP Ingenieure für Brandschutz GmbH, iMM GmbH, planfaktor3, BDKplan Ingenieurgesellschaft für Haustechnik mbH, Horeis + Blatt Partnerschaft mbB, bloomimages
Das Packhaus wird künftig als skulpturaler Baukörper das neue Speicherquartier am Vegesacker Hafen prägen. Im Kontext mit den anderen drei- bis viergeschossigen Gebäuden des Quartiers bildet es eine aus der Ferne sichtbare Landmarke.
Die einzigartige Lage nahe der Weser und Lesum, in unmittelbarer Nähe zum denkmalgeschützten Lange-Speicher charakterisiert den neuen Eingang der Maritimen Meile. Im Erdgeschoss des Packhauses werden öffentliche Nutzungen wie z.B. gastronomische Angebote mit einer Außenterrasse entstehen.
Die Obergeschosse sind als barrierefreie Wohnungen konzipiert und nach Süden und Westen mit großzügigen Loggien versehen. Zukünftige Bewohner können sich auf eine Lage mit Panoramablick entlang der Weser, auf den Vegesacker Hafen sowie über die Dächer der Stadt freuen. Ein lebendiges Quartier mit einem Mix aus Wohnen und Handel, mit guter Verkehrsanbindung und Infrastruktur.



